11件
-
NEW
23.1万円 (0.56万円/坪) 管理/共益費-
- / 41.49坪 (137.18㎡) /- /-
- 都市ガス
- 公共下水
下関市近辺での物件情報:大好評のあの物件「東京アーストンマンション№3」。駅まで歩いてアクセスできる、徒歩1分の距離に立地する物件です。
-
敷礼0
フリーレント
ペット可
NEW
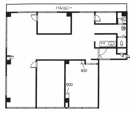
5.9万円 管理/共益費2,500円
4階 / 69.30㎡ / 3LDK /築22年 /4階建
- バス・トイレ別
- 室内洗濯機置場
- バルコニー
- フローリング
- 都市ガス
- シューズボックス
ペット飼育可!★敷金・礼金・入居月賃料・鍵交換費用が全て無料
室内フルリフォーム済み!!バス、トイレ、キッチンすべて新品!